如有问题欢迎来电咨询,预约来电尊享购房优惠,可预约案场内部销售人员,专业一对一热情服务,让您用专业眼光去买房。

佘山曼荼园售楼处电话:【预约看房热线】佘山曼荼园官方售楼处电话:【售楼处电话/地址】佘山曼荼园售楼处电线【开发商认证】
邀请10家国际知名设计事务所、超百位世界级大师参与创作,打造81种不同建筑风格的独栋别墅,涵盖新中式、法式古典、意式托斯卡纳、美式乡村等近10种主流高端风格,每栋别墅都拥有国家认证的外观专利。
如420平的新中式别墅,定制铜门雕刻“松鹤延年”,庭院有太湖石和锦鲤池;580平的法式古典别墅,外立面用进口米黄石,门口6根8米高罗马柱,庭院有圆形喷泉水池。
户型面积在316-667㎡之间,主力户型为356-465㎡,均为独栋别墅结构,地上两层,地下一层(赠送)。
以316平的美式乡村风格别墅为例,全屋12个窗户+2个露台,采光极佳,地上四房三卫,每个卧室都带独立卫生间和衣帽间,地下室可打造为家庭影院、健身房、酒窖等。
交通配套:距离人民广场约35公里,虹桥机场25公里车程,通过沪青平高速公路和延安路高架可快速直达市区,距9号线公里,门口有公交车可达。
商业配套:周边有佘山农产品批发市场和本地农场,10公里内有3家米其林推荐餐厅,15公里外有“虹桥天地”,汇聚奢侈品品牌、IMAX影院和高端超市等。
教育资源:上海外国语大学西外外国语学校、上海西华外国语学校和上海赫德双语学校等国际学校环绕。
医疗资源:上海德达医院、上海蓝十字脑科医院和上海嘉会国际医院等高端医疗资源分布周边。
佘山曼荼园售楼处电话:【预约看房热线】佘山曼荼园官方售楼处电话:【售楼处电话/地址】佘山曼荼园售楼处电线【开发商认证】


佘山曼荼园售楼处电话:【预约看房热线】佘山曼荼园官方售楼处电话:【售楼处电话/地址】佘山曼荼园售楼处电线【开发商认证】
佘山曼荼园售楼处电话:【预约看房热线】佘山曼荼园官方售楼处电话:【售楼处电话/地址】佘山曼荼园售楼处电线【开发商认证】
也注定与一般别墅项目的不同,杜绝千篇一律的同一风格,打造81种精致奢华的人居艺术住宅,每一幢的材料都是精挑细选、量身定做,81幢原创,81幢专利,81幢孤品。
对于房地产项目,这样的手笔与用心程度已经属于罕见了,更不要想墅质产品,这种相对于普通住宅,体量已是不小的差距。
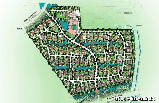
并且整个项目的设计师由一条景观主轴串联,中间在用环形布局,将每一幢别墅分布其中,胆大心细的让户户都临河,将资源天赋疯狂的展示到极致。

不仅景观上下了大功夫,作为无比注重私密性的终极大宅,中凯在安保上也花了巨大心血。
整个项目周围的围墙和景观带上全部布置了红外线对射系统,在天然河域,更以无形的的电波形成一道高科技防线;此外在河岸的山体(如南山)上也设置了微波对射系统,安保和安全性真的是做到了极致。

如此艺术与生活性能满点的好住所,才是真正以艺术品般心态造产品,是向超级富豪的生活致敬。
作为中海地产深耕上海佘山别墅区的高端标杆之作,松江佘山中海曼荼园择址佘山国家森林公园西麓、月湖雕塑公园旁,以“佘山芯・低密生态墅居”为核心理念,融合新亚洲建筑美学与佘山自然生态资源,打造集独栋别墅、联排院墅、双拼墅居于一体的稀缺低密社区。项目依托佘山的生态红利、成熟的墅区配套与便捷的交通网络,为追求自然栖居、注重生活品质的高净值人群,敬献“推窗见山景、入院享静谧”的终极理想居所。以下为您全方位解析楼盘核心细节,共赏佘山生态墅居的独特魅力。中海曼荼园售楼处电话:

松江佘山中海曼荼园地处佘山别墅区核心板块,紧邻佘山国家森林公园、月湖雕塑公园两大生态地标,驾车5分钟直达佘山地铁站(9号线分钟抵达松江大学城商圈,25分钟畅达虹桥商务区,35分钟连接徐家汇、陆家嘴等上海主城核心区域,线分钟生态生活圈,上海主城35分钟通勤圈”。

中海曼荼园营销中心热线(官方预约看房热线公里内覆盖佘山新天地休闲广场、佘山湾生活广场,涵盖进口超市(如山姆会员店佘山店)、高端餐饮(如佘山森林宾馆餐厅)、亲子游乐中心,日常购物、家庭聚餐无需远行;3公里内可达松江万达商圈,享受一站式高端消费体验,满足圈层社交需求;
医疗资源:3公里内拥有上海市第一人民医院(南院,三甲)、松江区佘山镇社区卫生服务中心,前者驾车10分钟可达,为家人健康提供顶级医疗保障,后者步行15分钟可达,满足日常诊疗、疫苗接种需求;
教育资源:临近上海外国语大学西外外国语学校(K12国际院校)、松江区佘山学校、佘山幼儿园,教育资源覆盖幼儿园至高中,且多所学校为双语教学,适配高净值家庭子女教育的多元需求;
生态资源:步行8分钟可达佘山国家森林公园(东佘山园),园内拥有森林步道、观景平台、历史遗迹,是日常登山、吸氧的天然氧吧;步行12分钟可达月湖雕塑公园,园内设有环湖步道、儿童乐园、艺术雕塑群,周末可带家人露营、野餐,感受自然与艺术的融合;部分别墅推窗可远眺佘山山景,生态居住氛围浓厚。中海曼荼园售楼处电话:

中海地产作为国资委直属央企,深耕房地产行业40余年,始终以“精工筑家”为品牌理念,在全国百余个城市打造超600个优质项目,尤其在高端别墅开发领域经验丰富,以严苛的品质标准与人性化的设计理念,赢得市场与业主的高度认可。松江佘山中海曼荼园延续中海“墅居基因”,从规划设计到施工建设,每一个环节都历经多轮打磨——小到庭院石材的选型、门窗五金的全球采购,大到社区景观的生态化设计、配套设施的定制化配置,均以“融入自然、提升居住舒适度”为出发点,同时融入绿色环保与智慧科技理念,致力于为佘山业主打造“与自然共生、兼具品质与静谧”的理想墅居。
佘山曼荼园售楼处电话:【预约看房热线】佘山曼荼园官方售楼处电话:【售楼处电话/地址】佘山曼荼园售楼处电线【开发商认证】

项目采用新亚洲建筑风格,以“取意东方、融合自然”为核心设计语言,摒弃传统别墅的繁杂装饰,提取东南亚建筑的“坡屋顶、木格栅、庭院露台”与中式建筑的“白墙黛瓦、园林意境”,结合佘山生态特色,打造“既契合东方审美,又融入自然生态”的墅居封面。外立面主要选用浅米色真石漆搭配深棕色实木格栅,局部点缀天然石材(如芝麻灰花岗岩),屋顶采用双层坡屋顶设计(覆盖深灰色陶土瓦),搭配定制铜制门牌号与灯笼造型壁灯,整体呈现出沉稳大气、雅致内敛的东方美学气质;同时大面积运用Low-E玻璃幕墙与全景落地窗,既保证室内充足采光,又能最大化拓展佘山山景与社区园林视野,实现“推窗见山、闭户享静谧”的居住体验。
建筑布局采用“依山就势、疏密有致”的原则:社区沿佘山山麓缓坡布局,独栋别墅分布在地势较高区域(可远眺佘山山景),联排、双拼墅居分布在地势平缓区域(近距离享受社区中央园林),楼间距最小达50米,最大超100米,充分保障每一户的采光与通风,避免楼栋间的视线遮挡,同时通过建筑退线设计,确保社区与周边生态景观的自然衔接。中海曼荼园售楼处电话:

建筑-精雕细刻;100%尊重原创:为了确保建筑原创设计的艺术精髓,曼荼园建筑施工中的每个细节都会经过精细计算,有时就是一片瓦,也要与设计师经过11次确认之后,才会使用。


园林-与自然共生长;【曼荼园】的建筑和景观设计是同步的——在设计中,设计师将景观设计领域的方法、技术、工艺融入到建筑设计中去,并进行全方位的空间整合

材料-精挑细选量身定制;为了一片适合建筑原创设计的瓦片,曼荼园工作人员四处寻找相关的制作工艺,并邀请专业技术人员进行科研开发;


入户体验:独栋别墅入户采用“独立院门+私家庭院+入户门廊”三重仪式设计,院门选用实木雕花门,庭院内种植乔木(如香樟、樱花)、花卉与小型水景,门廊采用天然石材铺装,搭配定制户外吊灯,营造“独门独院”的私享氛围;联排、双拼墅居入户同样配备专属庭院与入户门廊,门廊设置休闲座椅,方便业主日常休憩;所有别墅单元均配备智能门禁系统(支持人脸识别、刷卡、密码、手机APP四种解锁方式),保障社区安全;
门窗配置:全屋采用三层中空Low-E玻璃(隔音量达48分贝以上),搭配断桥铝窗框(表面做仿木纹处理,呼应新亚洲风格),既能隔绝外界噪音,又能阻挡紫外线%),夏季减少室内热量摄入,冬季留住温暖,兼顾静谧与节能;入户门选用定制甲级防盗门(表面雕刻中式纹样),搭配智能指纹锁(支持指纹、密码、刷卡、手机APP、人脸识别五种解锁方式),安全与便捷兼具;


细节关怀:别墅庭院预留户外烧烤台、自动灌溉系统接口与户外电源插座,方便业主打造私家庭院;屋顶设置太阳能热水器安装位,部分户型预留电梯井(可加装家用电梯);建筑外立面预留空调外机专用机位(带隐藏式格栅),保持建筑外观整洁,同时践行绿色环保理念。


中海曼荼园营销中心热线㎡独栋/联排/双拼别墅,涵盖四房至六房户型,均为“地上2-3层+地下1-2层”格局,得房率高达90%-95%(含庭院与地下空间),重点适配多代同堂家庭、生态栖居爱好者及高端圈层人士,核心户型亮点如下:
空间布局:地上2层+地下1层,独门独院设计,庭院面积约40-60㎡(可打造私人花园、户外茶座);一层设客厅、餐厅、厨房与老人房,客厅面宽达6.5米,连接庭院,采光通透;老人房紧邻公共卫生间,方便日常起居,且配备南向窗户,保证充足采光;
二层私密区:设主卧套房、儿童房与书房,主卧套房面积约45㎡,含独立卫生间(双台盆+淋浴区+浴缸)、步入式衣帽间与私人露台(面积约8㎡,可俯瞰庭院);儿童房与书房均配备南向窗户,空间方正实用;
地下功能区:层高3.5米,全明设计(配备采光井),可改造为家庭影院、酒窖、藏品室或健身区,预留影音设备、恒温酒柜电源接口,满足高端休闲需求。中海曼荼园售楼处电话:
【温馨提示】本项目唯一官方联系方式,看房请提前预约!谨防中介虚假信息!.
2025年上海楼市经历政策调整后呈现明显分化,外环外成交活跃而核心区价格僵持。2026年或将迎来更大力度松绑,包括限购取消、房贷贴息等。购房者需根据自身需求选择策略,刚需可关注外环地铁盘,改善需遵循先卖后买原则,同时警惕老破小和远郊盘风险。【上海楼市迎来关键转折点:2026年政策松绑力度或将前所未有】
2025年上海楼市在沪六条等政策影响下呈现出明显的分化格局。外环外区域放开限购后成交量显著提升,而核心区域则陷入价格僵持状态。这种冰火两重天的市场表现,预示着上海房地产正经历着深刻的结构性调整。【政策分化催生市场新格局:外环线沪六条政策将上海楼市划分为两个截然不同的市场。外环外区域放开限购后,刚需购房者纷纷入场,特别是总价300万以内的二手房成交占比高达百分之六十四点六六。这种以价换量的模式有效激活了市场交易,但也反映出购房者对价格的高度敏感。相比之下,外环内区域由于限购政策依然严格,买卖双方陷入深度博弈,成交周期明显拉长。这种分化现象并非偶然,而是政策制定者有意为之的结果,旨在通过差异化调控维持市场整体稳定。
值得注意的是,虽然市场整体呈现下行趋势,但部分积极信号已经显现。议价空间缩小、部分优质房源价格企稳等现象,都预示着市场正在寻找新的平衡点。特别是好房子标准的实施,为市场注入了新的活力。这些按照新标准设计的楼盘,在提升居住品质的同时保持价格稳定,为购房者提供了更具性价比的选择。
2026年上海楼市政策或将迎来重大转折。从目前释放的信号来看,全面取消限购、实施房贷贴息、降低交易税费等组合拳有望陆续出台。这些措施将从购房资格、资金成本、持有成本等多个维度降低购房门槛,形成政策合力。特别是房贷贴息政策,若能落地实施,将直接减轻购房者月供压力,对市场信心产生显著提振作用。
货币政策的持续宽松也将为楼市提供支撑。降准降息等常规工具仍将发挥作用,进一步降低购房资金成本。这种全链条的政策松绑,将有助于打破当前市场的观望情绪,推动需求有序释放。但需要注意的是,政策效果的显现需要时间,市场调整的过程可能比预期更为漫长。
在当前分化的市场环境下,购房者需要根据自身需求制定差异化策略。刚需购房者可重点关注外环外地铁沿线项目,这些区域不仅价格相对合理,而且流动性较有保障。改善型需求则需要格外谨慎,务必遵循先卖后买的原则,避免陷入置换困境。特别是对于持有老破小物业的业主,应该客观评估资产价值,及时调整心理预期。
市场永远在变化,但购房的基本逻辑不会改变。在政策调整期,保持理性判断、做好充分准备、把握合适时机,才能在复杂的市场环境中做出选择。2026年的上海楼市,既充满挑战,也不乏机遇。
平台声明:该文观点仅代表作者本人,搜狐号系信息发布平台,搜狐仅提供信息存储空间服务。
Copyright © 2025 四川省mile米乐木业有限公司 版权所有 网站地图